Chargeuse compacte électrique ST3090EV
Chargeuse compacte électrique avec 8 heures d'autonomie en une seule charge
- Capacité godet
0,5 m³ - Capacité de levage
3500 kg - Vitesse de déplacement
14km/h - Charge nominale
1000 kg
- Batterie longue durée, capable de fournir 6-8 heures d'opérations continues par charge pour un usage quotidien efficace.
- Système moteur hautement efficace combinant des moteurs de traction 4×12kW avec un système hydraulique de 30kW augmentant sa manoeuvrabilité.
- Avec une charge nominale de 1000 kg et un godet d'une capacité de 0.5 m³, offrant d'excellentes capacités de charge et de transport de matériaux dans des espaces étroits.
Spécifications
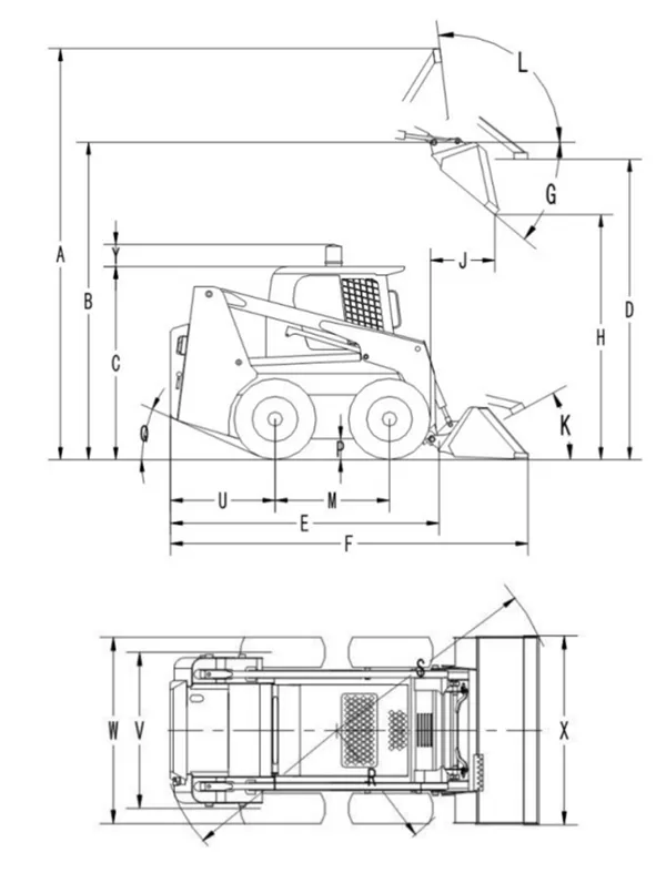
| A | Hauteur maximale | 4270mm |
| B | Hauteur max. axe du godet | 3265mm |
| C | Hauteur toit cabine | 2007mm |
| D | Hauteur godet | 3090mm |
| E | Longueur totale (sans godet) | 2571mm |
| F | Longueur totale (avec godet) | 3498mm |
| G | Angle de déversement max. | 35° |
| H | Hauteur de déversement | 2551mm |
| J | Portée déversement | 603mm |
| k | Angle de dégagement au sol | 30° |
| L | Angle de dégagement à hauteur de godet | 103° |
| M | Empattement | 1020mm |
| P | Garde au sol | 185mm |
| Q | Angle de rampe | 22° |
| R | Rayon de braquage au centre (sans godet) | 1235mm |
| S | Rayon de braquage au centre | 2110mm |
| T | Rayon de braquage à l'arrière | 1643mm |
| U | Porte-à-faux arrière | 1080mm |
| V | Largeur | 1469mm |
| W | Largeur totale (pneus) | 1740mm |
| X | Largeur totale (godet) | 1800mm |
| Y | Hauteur lumière d'alarme | 190mm |

Paramètres techniques
| Capacité de godet | 0.5m³ |
| Masse à vide | 3500kg |
| Vitesse de déplacement | 14km/h |
| Charge nominale | 1000kg |
| Type de pneu | 12-16.5 |
| Batterie d'alimentation | |
| Type de batterie | Lithium ion |
| Voltage batterie | 380V |
| Capacité batterie | 53.6kWh |
| Durée de vie | 6-8h |
| Système moteur | |
| Type de moteur | Moteur à aimants permanents |
| Puissance moteur | 4×12kW |
| Système hydraulique | |
| Type de moteur | Moteur à aimants permanents |
| Puissance moteur | 30kW |
| Débit hydraulique | 70l/min |
| Pression hydraulique | 215bar |
Remarque :
Les spécifications et configurations peuvent évoluer avec le temps. La confirmation finale est donnée par notre équipe commerciale internationale.
Attaches optionnelles
Godet standard
Godet grande capacité
Godet cribleur
Attache rapide
Fourches à palettes
Tarière
Lame à neige
Pince à grumes
Pince à balles rondes
Pince à balles carrées
Broyeur à fléaux
Bras de levage / accessoire grue
Les chargeuses compactes sont-elles adaptées aux chantiers sensibles sur le plan environnemental ?
Les chargeuses compactes sont-elles adaptées aux chantiers sensibles sur le plan environnemental ?
Les chargeuses compactes électriques fonctionnent sans émissions et utilisent des batteries lithium fer phosphate, assurant un fonctionnement propre, silencieux et économe en énergie, adapté aux environnements intérieurs et aux sites soumis à des réglementations strictes.
Quel modèle offre des performances stables en intérieur comme en extérieur ?
Quel modèle offre des performances stables en intérieur comme en extérieur ?
La chargeuse compacte à roues dispose d’une structure simple à vérins hydrauliques et d’une transmission directe sans jeu, garantissant un fonctionnement fluide et une grande maniabilité dans les espaces étroits.
Quel modèle permet un changement rapide des accessoires selon les applications ?
Quel modèle permet un changement rapide des accessoires selon les applications ?
La chargeuse compacte sur chenilles est équipée d’un système hydraulique simple et d’une transmission fluide, avec une interface multifonction permettant un changement rapide des outils.





