Chargeuse compacte électrique ST30130TEV
Chargeuse compacte électrique sur chenilles avec 8 heures d'autonomie par charge
- Capacité batterie
70.64 kWh - Type de batterie
Lithium fer phosphate (LFP) - Charge nominale
1300 kg - Poids opérationnel
4580 kg
- Alimentée par une batterie lithium-fer-phosphate pour des performances efficaces et écologiques. La batterie d'une puissance de 70.64 kWh dispose de 8 heures d'autonomie permettant des opérations continues pendant la journée pour répondre à une importante charge de travail.
- Equipée d'un double moteur à aimants permanents offrant une force de traction maximum de 35kN permettant d'escalader les pentes et de supporter les charges lourdes.
- Equipée de joystick à commande manuelle pour un contrôle précis facilitant le travail de l'opérateur.
- Puissance hydraulique de 30kW avec un débit hydraulique auxiliaire de 85 L/min, compatible avec de nombreuses attaches.
- Rayon de braquage minimum de seulement 1600 mm, permettant de travailler en intérieur et dans des lieux étroits.
Spécifications
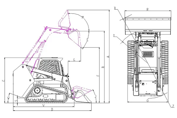
Dimensions de base
| A | Hauteur totale (levée max.) | 4390mm |
| B | Hauteur d'articulation (levée max.) | 3393mm |
| C | Hauteur ROPS | 2140mm |
| D | Longueur totale (avec godet) | 3695mm |
| E | Angle d'inclinaison vers le bas (levée max.) | 40° |
| F | Hauteur déversement | 2625mm |
| G | Portée déversement | 600mm |
| J | Angle d'inclinaison vers le haut | 30° |
| M | Angle d'inclinaison vers le haut max. | 100° |
| Q | Largeur totale (sans godet) | 1920mm |
| S | Garde au sol | 230mm |
| R | Largeur godet | 2180mm |
| W | Angle de rampe | 20° |
| V | Longueur totale (sans godet) | 2885mm |
| Y | Angle de braquage (sans godet) | 1600mm |
| X | Angle de braquage (avec godet) | 2430mm |
| Z | Angle de braquage arrière | 1660mm |

Paramètres techniques
Système de batterie
| Capacité batterie | 70.64kWh |
| Type de batterie | Lithium fer phosphate (LFP) |
Système de déplacement
| Puissance | 2×35kW |
| Force de traction max. | 35kN |
Système hydraulique
| Débit hydraulique pour les attaches | 85L/min |
| Pression | 21MPa |
| Puissance | 30kW |
| Vitesse max. | 2600rpm |
Paramètres techniques
| Charge nominale | 1300kg |
| Charge de basculement | 2600kg |
| Poids opérationnel | 4580kg |
| Vitesse de déplacement (lente/rapide) | 8/14km/h |
Attaches
| Attaches optionnelles | Utilisations | Notes |
| Godet 4-en-1, marteau piqueur, raboteuse, souffleuse | Maintenace de route et travaux publics | La raboteuse et le trancheur à disque requière un haut débit hydraulique |
| Raboteuse pour plaque d'égout, mélangeur de béton, crochet de levage | Remplacement de plaque d'égout | La raboteuse requière un haut débit hydraulique |
| Balayeuse, pelle à neige, souffleuse à neige | Déneigement | La souffleuse à neige requière un haut débit hydraulique |
| Transplanteuse d'arbre, cisaille d'arbre, tondeuse, foreuse, broyeur à bois | Paysagisme, travaux forestier, entretien des jardins | |
| Débroussailleuse,cisaille d'arbre, broyeur à bois | Travaux forestier et prévention incendie | La drequière un haut débit hydraulique ébroussailleuse |
Configurations générales
| Mode de contrôle | Contrôle hydraulique pilote |
| Moteur | Batterie lithium fer phosphate |
| Moteur de translation | Moteur à aimants permanents |
| Joystick de contrôle | Contrôle de pilote EBI |
| Pompe | Pompe à huile casappa |
| Raccord rapide hydraulique | Raccord rapide modulaire FASTER |
| Structure chassis | Intégré |
Remarque :
Les spécifications et configurations peuvent évoluer avec le temps. La confirmation finale est donnée par notre équipe commerciale internationale.
Attaches optionnelles
Godet standard
Godet grande capacité
Godet cribleur
Attache rapide
Fourches à palettes
Tarière
Lame à neige
Pince à grumes
Pince à balles rondes
Pince à balles carrées
Broyeur à fléaux
Bras de levage / accessoire grue
Les chargeuses compactes sont-elles adaptées aux chantiers sensibles sur le plan environnemental ?
Les chargeuses compactes sont-elles adaptées aux chantiers sensibles sur le plan environnemental ?
Les chargeuses compactes électriques fonctionnent sans émissions et utilisent des batteries lithium fer phosphate, assurant un fonctionnement propre, silencieux et économe en énergie, adapté aux environnements intérieurs et aux sites soumis à des réglementations strictes.
Quel modèle offre des performances stables en intérieur comme en extérieur ?
Quel modèle offre des performances stables en intérieur comme en extérieur ?
La chargeuse compacte à roues dispose d’une structure simple à vérins hydrauliques et d’une transmission directe sans jeu, garantissant un fonctionnement fluide et une grande maniabilité dans les espaces étroits.
Quel modèle permet un changement rapide des accessoires selon les applications ?
Quel modèle permet un changement rapide des accessoires selon les applications ?
La chargeuse compacte sur chenilles est équipée d’un système hydraulique simple et d’une transmission fluide, avec une interface multifonction permettant un changement rapide des outils.
